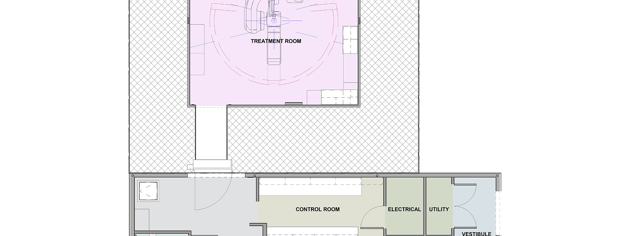
Windsor Regional Hospital RAD Vault
2,420 sq ft
2 days
1X radiotherapy treatment vault
control room

Windsor Regional Hospital, in Ontario, Canada, was facing a growing demand for radiation therapy services.
With three existing radiation therapy vaults at full capacity, the hospital needed to expand its oncology treatment capabilities to accommodate more patients. Traditional construction methods for a new vault would have caused prolonged disruptions to hospital operations and delayed patient care. The hospital required a fast, flexible, and cost-effective solution that could seamlessly integrate with its existing infrastructure.
The Solution
To meet Windsor Regional Hospital’s urgent need for expansion, RAD provided them with a RAD Vault and control room.
The RAD Vault utilizes RAD’s proprietary granular shielding technology to ensure optimal radiation protection. Unlike conventional concrete vaults, which can take months to construct, RAD’s innovative modular approach allowed for on-site installation in just 2 days (the vault was installed in one day and the clinic module on a second day), drastically reducing local operational disruptions.
The RAD Vault was strategically placed adjacent to the hospital’s existing three vaults, expanding treatment capacity without requiring extensive site modifications. A custom-built corridor was constructed on-site, seamlessly connecting the new vault to the main hospital facility, ensuring efficient patient and staff access. The vaults integrated control room enables healthcare professionals to monitor and manage treatments effectively, optimizing both patient experience and operational efficiency.
By leveraging RAD’s modular construction expertise, Windsor Regional Hospital successfully expanded its oncology services without the noise, disruption, and other constraints of traditional building methods. The project’s rapid completion allowed the hospital to increase patient throughput, enhance scheduling flexibility, and provide world-class radiation therapy services.
The successful deployment of the RAD Vault underscores the transformative power of modular healthcare solutions, offering hospitals a future-proof, scalable approach to meeting the evolving needs of cancer treatment facilities.



















