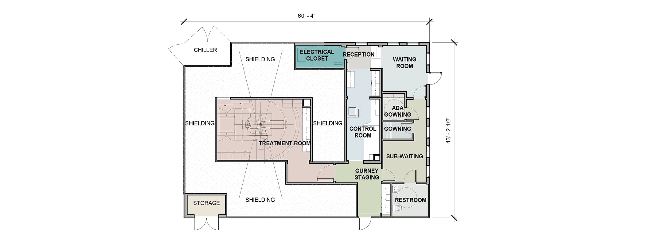
Adventist Health Radiation Temp Vault
2,580 sq ft
4 days
1X radiation vault

Adventist Health Glendale (Glendale), was in their third year of growth and needed to upgrade their linear accelerator to the new Varian TrueBeam.
In addition to concerns regarding the continuity of patient care during the equipment upgrade process, they anticipated that the inevitable loss of growth momentum during the center’s shutdown would set them back 2 to 3 years in business development.
The Solution
The lease of the RAD Temp for 150 days, allowed Glendale to continue treating patients during their equipment upgrade and stay on target for patient care and revenue.
In collaboration with hospital administration, RAD managed the permitting, site preparation, installation of the below grade patented foundation system and electrical service connections. Once those were in place, RAD’s project team coordinated the delivery of the eight modules comprising the temporary cancer center, assembled the facility in under 5 days and managed the remaining site work to completion.
Value Added Glendale, CA
Adventist Health's Collaborative Success with White Memorial and Glendale TrueBeam Upgrades Enhances Patient Care Continuity
White Memorial Hospital, an Adventist Health affiliate, located only seven miles away also anticipated downtime for their TrueBeam upgrade as well as for OSHPD regulated department renovations. The proximity of these two affiliated centers created a unique opportunity for cooperation.
Upon completion of Glendale’s equipment upgrade, Adventist Health requested that the RAD Temp remain in place to allow White Memorial to use the facility. White Memorial was able to continue treating patients during their 7 month equipment upgrade and department renovation without compromising continuity of care.
“It was important for us to have this temporary facility available while we worked on upgrading the cancer center so we did not have to stop or hinder patient care. The project couldn’t have been easier, as RAD provided full turnkey services, handling everything from start to finish.”
Dennis Quagliani Director of Cancer Services, Glendale Adventist Medical Center


















